服務熱線
021-56633982
021-66287771
021-56908228
聞“污”色變,污水處理廠這個曾是“臟亂臭”代名詞的時代即將過去,不久的將來,一座披著“隱形衣”的地埋式高顏值污水廠——金馬污水處理廠將落地成都市溫江區金馬街道。

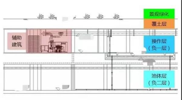
(地下式污水處理廠效果示意圖)
金馬污水處理廠(地下式)一期處理規模6萬m3/日,項目遠期總規模14.0萬m3/日。計劃于2021年上半年開工建設。
傳統地上式污水處理廠在臭氣、噪音、景觀等方面對周邊環境影響較大,與溫江區整體環境發展目標不一致。
地下式污水處理廠具有高土地利用率、高周邊環境效益和社會效益等優勢,更契合溫江區的優美環境和“宜業宜居宜游”的發展規劃。有利于廠址北側地塊開發利用,有利于與金馬國際馬術公園環境協調,有利于改善廠址南側雙流居民區周邊環境,有利于提升溫江整體環境形象。


據悉,溫江區金馬污水處理廠即將于今年上半年開工建設。隨著該項目的推進,將不斷完善城市污水處理系統,解決日益增長的污水量處理需要,避免污水長距離輸送。項目完工后可進一步改善生態環境,提升溫江區“南大門”形象,進一步釋放生態紅利、環境紅利、發展紅利,促進經濟可持續發展,同時極大完善我區排水基礎設施建設,為親水之城建設注入了綠色發展的新活力。
來源:水韻溫江 作者:李強
本文轉載于網絡,目的在于傳遞更多的信息,如涉及版權問題請及時聯系,我們定會配合刪除;我公司專業生產一體化預制泵站,磁力泵,塑料泵,離心泵,排污泵,潛水泵,化工泵,油泵,隔膜泵等。